Hilversum – Violenstraat 110
Beschikbaar
- € 449.500,- k.k.
Omschrijving
Midden in de buurt Bloemenkwartier Noord gelegen charmante 4,5 kamer hoekwoning van 79,8 m² met drie slaapkamers, een zolderverdieping, een tuin aan drie zijden, een dakterras, een berging en een overkapping.
Deze karaktervolle woning ademt sfeer en authenticiteit dankzij diverse originele details, waaronder een haardschouw, ensuite deuren naar de voorkamer en fraaie glas in lood elementen. Tegelijkertijd is de woning keurig afgewerkt naar hedendaagse maatstaven en voorzien van een moderne badkamer en keuken. De sfeervolle kookschouw boven het fornuis vormt een charmante knipoog naar vroeger. De tuin biedt volop mogelijkheden voor het creëren van een gezellige buitenruimte met overkapping. Een bijzonder sfeervol geheel in Hilversum Zuid.
Wonen aan de Violenstraat betekent wonen in het geliefde Bloemenkwartier: een rustige, groene woonomgeving met karakteristieke bebouwing en een prettige dorpssfeer. Dagelijkse voorzieningen, speciaalzaken en horecagelegenheden aan de Gijsbrecht van Amstelstraat liggen op korte afstand, net als scholen en sportfaciliteiten. Het centrum van Hilversum en het NS station zijn snel bereikbaar per fiets, terwijl ook de uitvalswegen richting Utrecht, Amsterdam en Amersfoort nabij zijn. Een fijne combinatie van comfortabel wonen, goede bereikbaarheid en een levendige maar ontspannen woonomgeving.
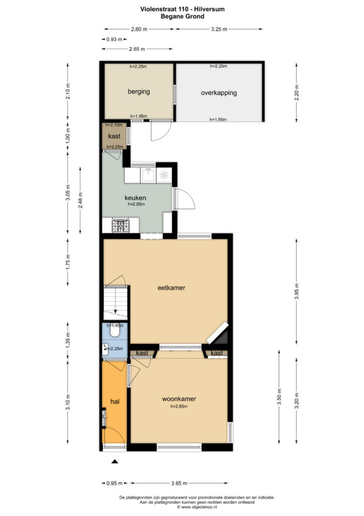
Indeling:
Begane grond; Voortuin met voetpad naar de voordeur, hal met meterkast en toilet met fontein. Vanuit de hal toegang tot de woonkamer met inbouwkasten. Via de ensuite schuifdeuren is de eetkamer bereikbaar, welke is voorzien van een schouwmantel.
Aan de achterzijde bevindt zich de open doorgang naar de keuken, die is verdeeld in drie compartimenten. De keuken beschikt over een inbouwkast, een fraaie kookschouw en diverse inbouwapparatuur. Vanuit de keuken is er toegang tot de achtertuin. De tuin loopt langs de voorzijde, zijflank en achterzijde van de woning en beschikt over een zijpoort. De achtertuin is gelegen op het zonnige zuiden en biedt ruimte aan een afgesloten berging en een overkapping.
Vanuit de woonkamer leidt een deur naar de trapopgang naar de eerste verdieping.
Eerste verdieping; Overloop met vlizotrap en toegang tot alle vertrekken, waaronder drie slaapkamers. De slaapkamers zijn voorzien van dakkapellen en de kleinste slaapkamer biedt toegang tot het dakterras. De badkamer is uitgerust met een wastafelmeubel, een tweede toilet en een douche.
Tweede verdieping; Deze verdieping is bereikbaar via de vlizotrap en heeft in het midden een hoogte van circa 1,70 meter. Hier bevindt zich tevens de opstelling van de cv installatie.
Bijzonderheden:
• Bouwjaar 1900, sindsdien gerenoveerd
• Rijk aan sfeer en karakter
• Volledig instapklaar
• Gelegen in een gewilde en sfeervolle buurt
• Nabij voorzieningen, openbaar vervoer, winkels en diverse uitvalswegen
• In de koopovereenkomst worden een ouderdomsclausule, een niet zelfbewoningsclausule en een asbestclausule opgenomen
• Oplevering in overleg













