Utrecht – Amsterdamsestraatweg 514
Beschikbaar
- € 499.500,- k.k.
Omschrijving
In het erg gewilde en karaktervolle Elinkwijk, op steenworp afstand van het geliefde Julianapark, ligt deze prachtige en sfeervolle 5 -kamer bovenwoning van 110,2 m², verdeeld over drie volwaardige woonlagen. Een royaal jaren ’30 pand met vier slaapkamers, een woon-eetkamer en een zonnig balkon op het zuidwesten.
De ligging is werkelijk ideaal: in een populaire wijk, terwijl alle dagelijkse voorzieningen, winkels, horeca, openbaar vervoer en uitvalswegen zich binnen handbereik bevinden. Het Julianapark ligt letterlijk om de hoek — perfect voor een wandeling, sportmoment of ontspannen middag in het groen.
Deze charmante woning ademt sfeer en karakter. Authentieke elementen zoals ensuite deuren, haardschouwen en zichtbare hanenbalken geven het geheel een warme uitstraling. Tegelijkertijd zorgen de moderne keuken en badkamer voor hedendaags comfort. Dankzij de vele ramen en luxe dakramen is er een bijzonder prettige lichtinval, zelfs op de bovenste verdieping.
Kortom: een karakteristieke en royaal bemeten jaren ’30 bovenwoning op een toplocatie in geliefd Elinkwijk, waar sfeer, ruimte en een uitstekende ligging nabij het Julianapark samenkomen tot een bijzonder aantrekkelijk geheel.
Indeling:
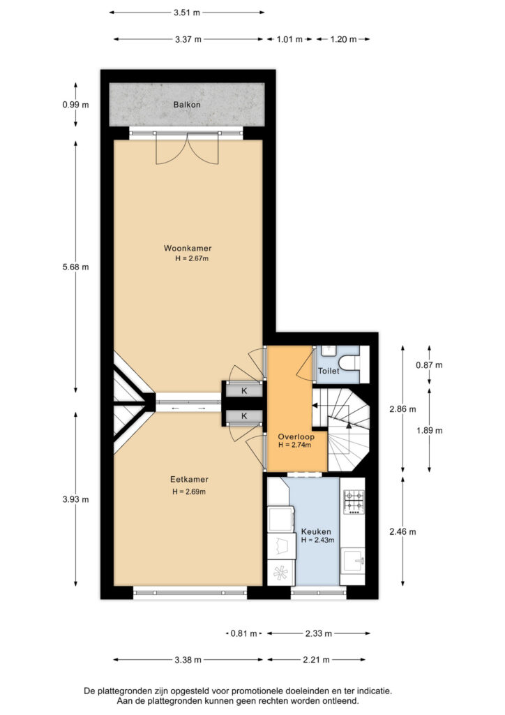
Begane grond: Voortuin met pad naar de voordeur. Entree, hal met meterkast en trapopgang naar de eerste verdieping.
Eerste verdieping; Overloop met trapopgang, toilet met fontein. Open doorgang naar de moderne keuken. De keuken is luxe uitgevoerd en voorzien van diverse inbouwapparatuur en een wasmachine-aansluiting. (wasmachine en droger blijven achter).
Toegang tot de royale doorzonliving, die middels ensuite deuren is opgedeeld in een voor- en achterkamer. Beide kamers beschikken over een haardschouw en een inbouwkast, wat de authentieke sfeer versterkt.
Aan de achterzijde geven openslaande deuren toegang tot het balkon. Het balkon is gelegen op het zuiden, voorzien van kunstgras en afgewerkt met een karakteristieke stenen balustrade — een heerlijke plek om van de zon te genieten.
Tweede verdieping; Overloop met inbouwkast en toegang tot meerdere vertrekken, waaronder de badkamer met wastafel, inloopdouche en tweede toilet.
Op deze verdieping bevinden zich twee slaapkamers. één slaapkamer met inbouwkast en één slaapkamer met eigen wastafel.
Via de overloop is er toegang tot de vaste trap naar de derde verdieping.
Derde verdieping; De bovenste woonlaag beschikt over drie ruimtes, praktisch ingedeeld als een royale overloop en twee slaapkamers. Dankzij meerdere dakramen en een dakkapel is dit een verrassend lichte verdieping.
Eén van de kamers beschikt over een eigen wastafel en inbouwkast. Onder het schuine dak is bovendien extra bergruimte gecreëerd.
Bijzonderheden:
• Bouwjaar 1931
• Kleinschalige VvE met een maandelijkse bijdrage van ca. € 100,-
• MJOP aanwezig
• In de koopovereenkomst worden een asbestclausule, niet-zelfbewoningsclausule en ouderdomsclausule opgenomen
• Oplevering in overleg








