Utrecht – Burgemeester Norbruislaan 107
Beschikbaar
- € 845.000,- k.k.
Omschrijving
Aan de statige Burgemeester Norbruislaan in het geliefde Zuilen-Noord bevindt zich deze indrukwekkend royale en duurzame gezinswoning van circa 157 m². Een woning waar ruimte, licht en comfort op harmonieuze wijze samenkomen, met vier slaapkamers, twee riante dakterrassen en een uitzonderlijk diepe achtertuin.
De architectuur kenmerkt zich door brede raampartijen, een open leef-structuur en een natuurlijke verbinding tussen binnen en buiten. De living strekt zich uit over de volledige breedte van de woning en baadt in het daglicht. De moderne open keuken aan de voorzijde biedt een prettige zichtlijn over de straat en vormt het hart van het huis — een plek waar koken en samenzijn moeiteloos samenkomen.
De achtertuin is met circa 18 meter diepte uitzonderlijk royaal en biedt volop ruimte voor meerdere terrassen, een stijlvolle buitenlounge en lange zomeravonden in volledige privacy. De vrijstaande berging en achterom zorgen voor optimaal gemak.
Ook de voortuin is opvallend ruim opgezet en draagt bij aan een aangenaam gevoel van privacy en afstand tot de straat. De royale opzet biedt daarnaast uitstekende mogelijkheden voor parkeren op eigen terrein, een waardevolle toevoeging in de stad.
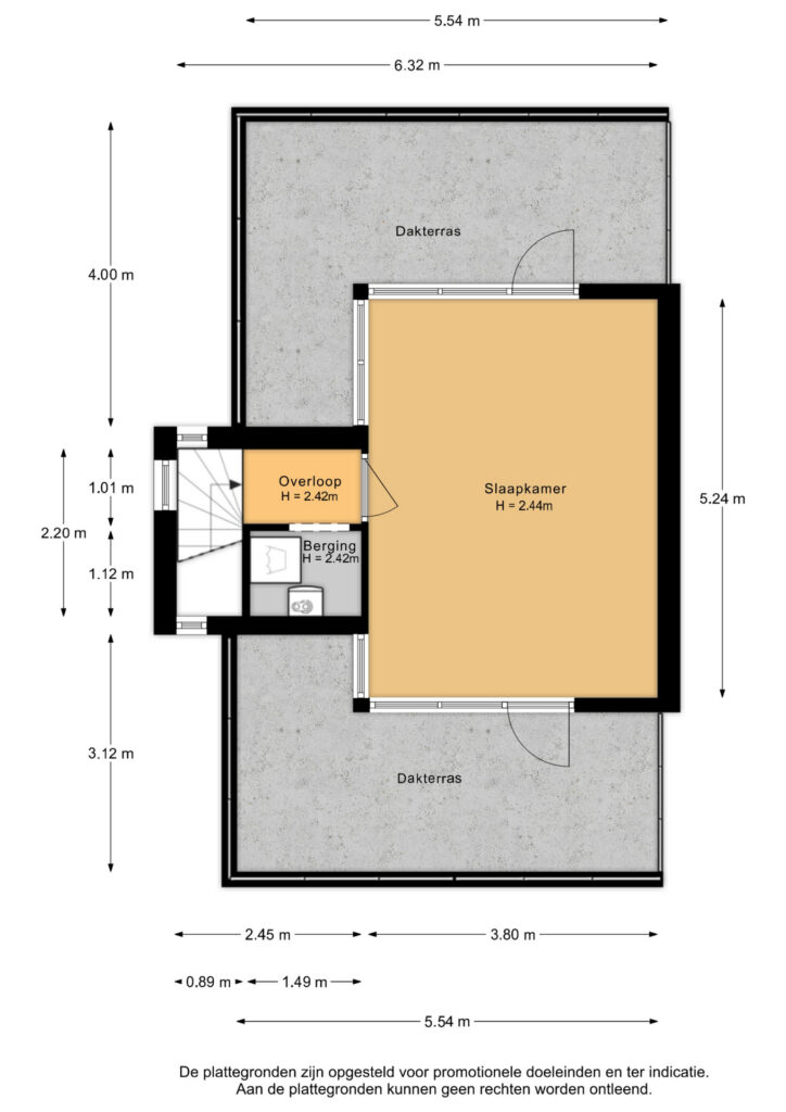
Op de eerste verdieping bevinden zich drie volwaardige slaapkamers en een comfortabele badkamer. De tweede verdieping vormt het absolute pronkstuk van de woning: een royale master suite met rondom lichtinval en aan weerszijden een ruim dakterras. Een exclusieve setting met een vrij en groen uitzicht — een zeldzaam luxe element binnen de Utrechtse woningmarkt.
Met energielabel A, zonnepanelen en een solide bouwjaar (1995) is deze woning niet alleen stijlvol, maar ook toekomstbestendig en energiezuinig.
Gelegen in een groene, ruim opgezette wijk met alle voorzieningen, scholen en uitvalswegen binnen handbereik en op korte afstand van de binnenstad van Utrecht, biedt deze woning een ideale balans tussen rust en stedelijke dynamiek.
Een woning met allure, comfort en formaat. Een bezichtiging bevestigt het gevoel.
Indeling:
Begane grond; Representatieve entree, hal met toiletruimte en meterkast. Royale living met zit- en eetgedeelte en open keuken aan de voorzijde. Directe toegang tot de diepe en fraai aan te leggen achtertuin met berging en achterom.
Eerste verdieping: Overloop, drie goed bemeten slaapkamers en een complete badkamer.
Tweede verdieping; Overloop met bergruimte en opstelling voor was-apparatuur. Royale vierde slaapkamer met aan weerszijden een ruim dakterras, waardoor een unieke combinatie van privacy, licht en buitenruimte ontstaat.
Bijzonderheden:
• Bouwjaar 1995
• Twee riante dakterrassen
• Diepe achtertuin van circa 18 meter
• Vrijstaande berging
• 10 zonnepanelen
• Energielabel A
• Eigen grond
• Oplevering in overleg








