Utrecht – H. Wijnmalenstraat 50
Verkocht
- € 599.500,- k.k.
Omschrijving
Compleet gerenoveerde jaren ’30 tussenwoning van ca. 100 m² met vier slaapkamers, balkon en achtertuin met achterom. De woning is tot in detail vernieuwd met behoud van karakter: visgraat pvc-vloeren door de gehele woning, vloerverwarming op de begane grond, een luxe afgewerkte badkamer, een nieuw dakkapel en nieuwe dakpannen. De strak aangelegde achtertuin beschikt over een terras, groenstrook en een speelse combinatie van houten schuttingen en authentiek metselwerk.
Mede dankzij de openslaande deuren naar het terras en het balkon is het karakter van de woning prachtig bewaard gebleven, terwijl het comfort van nu volledig is geïntegreerd. Vanuit de tuin en het balkon is er uitzicht over de sfeervolle achtertuinen van de populaire Utrechtse wijk Zuilen.
Zuilen staat bekend om haar gezellige, kindvriendelijke karakter met veel jonge gezinnen, scholen, kinderopvang, winkels en horeca om de hoek. Winkelcentrum Rokade, het Julianapark, huisarts en apotheek liggen op loopafstand. De wijk biedt een gunstige ligging ten opzichte van de uitvalswegen (A2, A12, A27) en binnen een kwartier fietsen is het centrum van Utrecht bereikbaar. Parkeren kan gratis voor de deur.
Kortom: een instapklare jaren ’30 woning met de charme van toen en het comfort van nu, op een ideale locatie in Utrecht.
Indeling:
Begane Grond; Entree hal met trapopgang en toilet met fontein, doorzon woonkamer met erker aan de voorzijde en openslaande tuindeuren naar het terras. Open keuken welke gesitueerd is in een hoekopstelling en voorzien is van Wirlpool inbouwapparatuur, waaronder oven, koel, vrieskast, vaatwasser, afzuigkap en inductiekookplaat. De keuken heeft tevens toegang tot de achtertuin. De tuin is gelegen op het noordwesten en is volledig aangelegd en heeft een af te sluiten achterom.
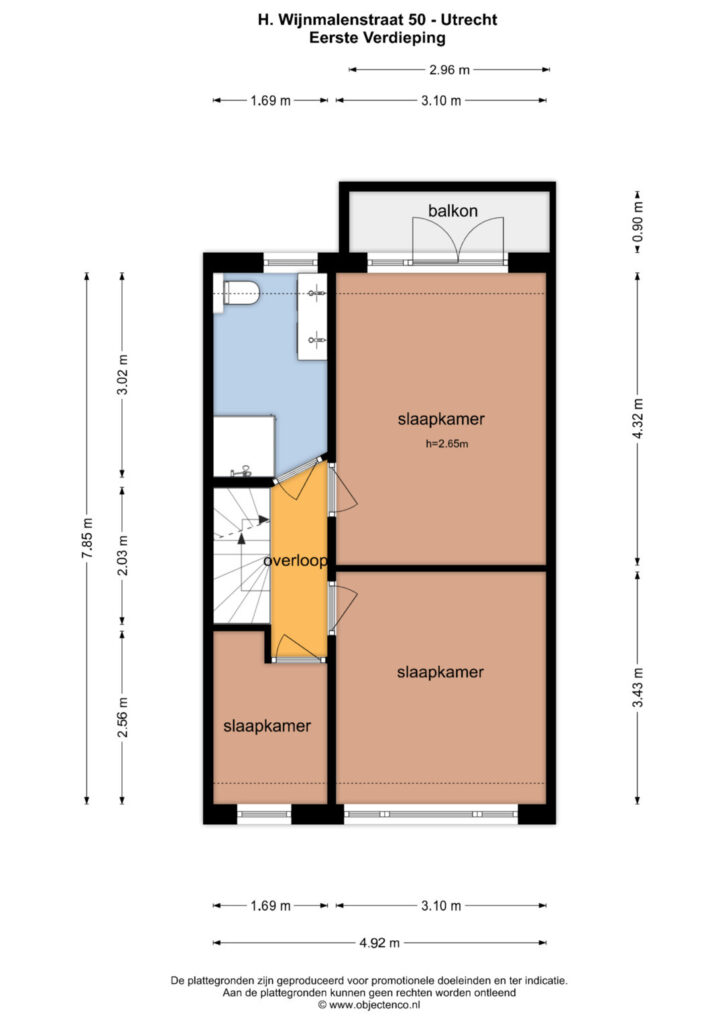
Eerste Verdieping; Overloop met toegang tot alle vertrekken, waaronder drie slaapkamers en een badkamer. De luxe badkamer is voorzien van een douche, een tweede toilet en een dubbele wastafelmeubel. De slaapkamer aan de achterzijde beschikt over openslaande deuren naar het balkon, welke tevens gelegen is op het noordwesten.
Tweede Verdieping; Deze bovenste verdieping beslaat een riante slaapkamer met dakkapellen aan weerszijden. Hier bevindt zich ook een afgesloten ruimte voor de c.v. opstelling.
Bijzonderheden:
• Bouwjaar 1936
• Compleet gerenoveerd
• Jaren ’30 charme
• In het zinderende Zuilen
• Vrij parkeren in de straat
• PVC Visgraat vloer gehele woning
• Vloerverwarming begane grond
• Luxe inbouwkranen badkamer
• Inloop douche
• Vernieuwde toiletten
• Wirlpool inbouwapparatuur keuken
• Achtertuin gelegen op het noordwesten met achterom
• Nieuwe dakkapel kozijn en bekleding achterzijde
• Nieuwe dakpannen
• In deze koopovereenkomst worden een ouderdomsclausule en een asbestclausule opgenomen
• Oplevering in overleg












